Übersicht
| Größe: | ca. 92 qm |
| Belegung: | Optimal 2 - 4 Personen, bis zu 6 Personen möglich |
| Schlafzimmer: | 2 (optional 3) d.h. 1 Schlafzimmer mit Du/WC zubuchbar |
| Bäder: | 2 (optional 3) |
Erdgeschoss

Der Eingangsbereich befindet sich im Erdgeschoss.
Von dem Stellplatz aus zugänglich befindet sich der Waschraum mit Waschmaschine, Trockner und einer Abstellmöglichkeit für die zwei vorhandenen Fahrräder.
Allgemein
Die Wohnräume beginnen im Obergeschoss. Hier verbindet eine offen gestaltete Holztreppe den Essbereich mit der Wohngalerie im Dachgeschoss.
Sie finden im Treppen-, Koch-und Badbereich Naturstein vor.
Die Wohn-und Schlafräume sind mit Parkett ausgestattet.
Alle Räume haben Tageslicht.
Es handelt sich hier überall um Nichtraucherzimmer. Haustiere sind leider nicht erwünscht.
Obergeschoss

- Essplatz mit 4-5 Stühlen an bodentiefen Fenstern
- Stereoanlage, Highspeed-Internet (DSL 50 MBit/s), Smart-TV
- „Mein Lieblingsplatz“: Gemütliche Sitznische vor der historischen Stadtmauer
- Küche mit Cerankochfeld (Induktion), Kühl-und Gefriergerät, Backofen, Umluftabzug, Spülmaschine, Kaffemaschine, Toaster, Wasserkocher, Stabmixer, Saftpresse
- Garderobe
- Schlafzimmer mit Boxspringbett (1,80m x 2,00m, offenes Fußende), Smart-TV und Einbaukleiderschrank
- Badezimmer mit DU/WC
- Kinderhochstuhl und Wickelauflage vorhanden
- Föhn
- Bügelbrett und Bügeleisen
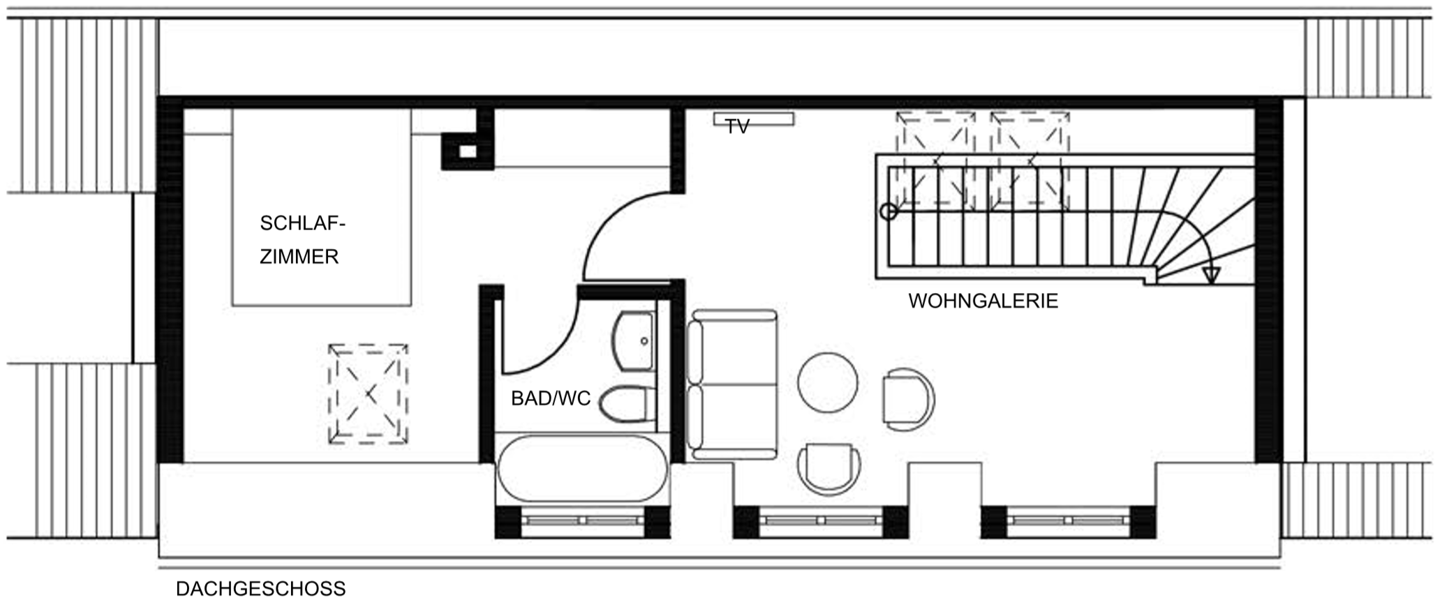
Dachgeschoss
- Offen gestaltete Wohngalerie mit ausziehbarem Schlafsofa(ca.1.40m x 2.00m) und Sitzgruppe, 4K SmartTV sowie einer Leseecke mit Longchair
- Zweites Schlafzimmer mit Doppelbett (1,80m x 2,00m mit offenem Fußende) und Einbaukleiderschrank und SmartTV
- Badezimmer mit Waschbecken, Badewanne und WC
- Gesellschaftsspiele sind vorhanden
Parken
Es gibt einen Stellplatz am Haus, der für die Aufstellung von Klein und Mittelklassewagen geeignet ist.
Größere Fahrzeuge (z.B. VW-Busse oder SUVs) sind nur in Schrägaufstellung möglich und sollten auf dem ca. 40m entfernten öffentlichen, gebührenpflichtigen Parkplatz abgestellt werden.
Eine ständige Beleuchtung ist möglich.